
Darkbay Retreat
24 m²
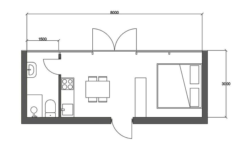
Discover the Foor Plan
Here you’ll find the measurements. Further down, you’ll discover detailed specifications to help you understand all the features. Once you’ve reviewed the information, please submit your interest using the form at the bottom of the page.
All measurements are provided in millimeters [mm]
Specifications and Details
Basic Details:
Kitchen Details:
-
Exterior Dimensions: 8,4 x 3,4 [m]
-
Interior Dimensions: 8,0 x 3,0 [m]
-
Roof: Roofing sheeting
-
Facade: Vertical wood panel
-
Windows: PVC windows with double-glazing
-
Floor: Laminate
-
Interior Walls: MDF Panel
-
Interior Ceiling: MDF Panel
-
Insulation (Floor/Walls/Roof): 200/200/250 [mm]
-
Heating System: Air-to-air heat pump
-
Kitchen Frames and Fronts: Yes
-
Countertop: Yes
-
Handles: Yes
-
LED Lighting: Yes
-
Extractor Fan: Yes
-
Oven: Yes
-
Refrigerator: Yes
-
Induction Cooktop: Yes
-
Sink: Yes
-
Faucet: Yes
-
Electrical Outlets (Kitchen): Yes
Bathroom Details:
Additional Costs:
-
Bathroom Walls: PVC Panel
-
Bathroom Floor: Ceramic tiles
-
Shower Set: Yes
-
Toilet: Yes
-
Bathroom Mirror: Yes
-
Washbasin and Faucet: Yes
-
Shower Faucet: Yes
-
Electrical Outlets (Bathroom): Yes
-
Towel Warmer: Yes
-
Bathroom Lighting: Yes
Prices depend on your location and country.
The following should be considered as additional costs:
-
VAT
-
Transport
-
Crane truck
-
Groundwork and foundation
-
Utility connections

.jpg)